19 Photos
-
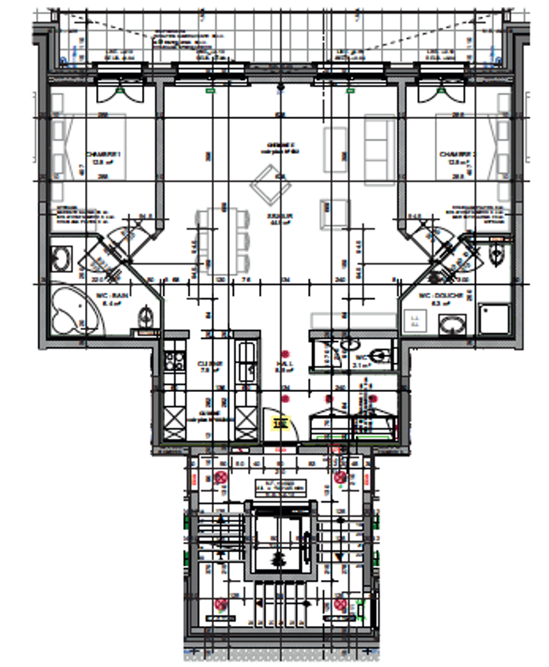
3,5
-
2
-

2 -
115 m2
Learn more