EV Real estate Services Sarl
EV Real estate Services Sarl
Our contact information
  • EV Real estate Services Sarl
  • Chemin de Dzelon Haute-Nendaz
  • 1997 NENDAZ - SUISSE
  • See the phone number
Contact us Call Back Request
Locate us
map
Itinerary
EV Real estate Services Sarl
  • +41(0)79 194 83 92
  • elsje@evres.ch
  • Favoris
  • En
    FR DE NL
  • Home
  • Sale
    ALL OUR SALES HIDDEN PROPERTIES Goods sold
  • Rental
    Short term Long term
  • Services
    RENOVATION Construction INTERIOR MAKE OVER PROPERTY MANAGEMENT INVESTMENTS VALUATIONS
  • News
  • About you and me
  • Contact us

    Selling price CHF : 1'634'875
    Ref :EVR18_bis_2
    • Facebook Twitter Linkedin Email

  • appartement
    Veysonnaz
    € 1 634 875 *
    Price: € 1 634 875 *
    * Agency fees will be borne entirely by the seller
    5,5
    4
    4
    226 m2

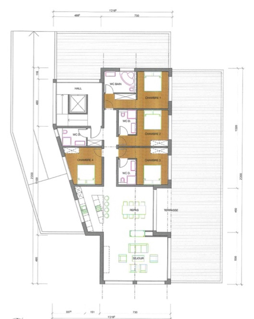
    APPARTEMENT SKI-IN/SKI-OUT REZ DE CHAUSSEE

    Appartement Ski-In/Ski Out au rez de chaussée d'une nouvelle résidence de 3 appartements haut-standing.

    Le Petit Mayen se compose de 3 appartements, un par étage, tous d'une surface de vente de 225.5 m². Cet immeuble ski in ski out est accessible en voiture. Il vous propose sept places de parking couvertes avec un accès aux étages par ascenseur. Ainsi qu'une cave et d'un local à ski pour chaque appartement. Sans oublier une buanderie toute équipée (lave-linge, sèche-linge et lavabo). De plus pour vous détendre après une journée de ski vous trouverez au sous-sol un local détente équipé d'un sauna.

    Choix au gré du preneur avec matériaux de haut standing.

    Les appartements se composent ainsi:

    ° Un hall d'entrée avec rangements encastrés
    ° Salle de bain (douche, WC, lavabo)
    ° Chambre 1 avec rangements encastrés, salle de bain en suite (baignoire, WC, lavabo) avec accès extérieur
    ° Chambre 2 avec rangements encastrés, salle d'eau en suite (douche, WC, lavabo) avec accès extérieur
    ° Chambre 3 avec rangements encastrés, salle d'eaz en suite (douche, WC, lavabo) avec accès extérieur
    ° Chambre 4 avec rangements encastrés et accès extérieur
    ° Une cuisine ouverte sur la salle à manger
    ° Un salon/séjour avec accès terrasse

    Prix à partir de 1'555'950 CHF
    Place de parc intérieure en sus : 35'000 CHF par place de parc.


    Caracteristics
    • Reference : EVR18_bis_2
    • Town : Veysonnaz
    • Selling price CHF : 1'634'875 CHF
    • Living area : 226 m2
    • Construction : 2023
    • Résidence : Secondary / Sale to foreigners
    • Number of rooms : 5,5
    • Number of bedrooms : 4
    • Bathroom : 4

    VIDEO

    Localisation
    • Restaurants
    • Cafes
    • Airports
    • Pharmacies
    • Supermarkets
    • Schools
    • Doctors
    • Dentists
    • Parking
    • Hotels

    Interested ?
    Contact ELSJE VERFAILLIE

    ELSJE VERFAILLIE
    +41(0)79 194 83 92
    elsje@evres.ch

    Contact us
    * Mandatory Information required
    Similar properties
    16 Photos
    Apartment € 1 460 000  sur Veysonnaz (1993) - Réf. EVR17_bis_4
    A vendre apartment Veysonnaz 1993; € 1 460 000
    A vendre apartment Veysonnaz 1993; € 1 460 000
    Apartment € 1 460 000  sur Veysonnaz (1993) - Réf. EVR17_bis_4
    Achat apartment Veysonnaz Réf. EVR17_bis_4
    Apartment sur Veysonnaz ; € 1 460 000  ; Achat Réf. EVR17_bis_4
    Apartment sur Veysonnaz ; € 1 460 000  ; Achat Réf. EVR17_bis_4
    Apartment sur Veysonnaz ; € 1 460 000  ; Achat Réf. EVR17_bis_4
    Vente apartment € 1 460 000  Veysonnaz
    Apartment sur Veysonnaz ; € 1 460 000  ; A vendre Réf. EVR17_bis_4
    Achat apartment Veysonnaz Réf. EVR17_bis_4
    Apartment € 1 460 000  Réf. EVR17_bis_4 Veysonnaz
    Apartment € 1 460 000  sur Veysonnaz (1993) - Réf. EVR17_bis_4
    Apartment € 1 460 000  sur Veysonnaz (1993) - Réf. EVR17_bis_4
    Apartment € 1 460 000  Réf. EVR17_bis_4 Veysonnaz
    Vente apartment € 1 460 000  Veysonnaz
    Apartment
    Veysonnaz
    MAGNIFIQUES DUPLEX SKI IN SKI OUT

    CHF
    • 4

    • 4
    • 195 m2
    Learn more
    14 Photos
    Apartment € 1 555 950  Réf. EVR18_bis_1 Veysonnaz
    Achat apartment Veysonnaz Réf. EVR18_bis_1
    Vente apartment € 1 555 950  Veysonnaz
    Apartment sur Veysonnaz ; € 1 555 950  ; Vente Réf. EVR18_bis_1
    Achat apartment Veysonnaz Réf. EVR18_bis_1
    Apartment € 1 555 950  sur Veysonnaz (1993) - Réf. EVR18_bis_1
    Apartment € 1 555 950  Réf. EVR18_bis_1 Veysonnaz
    A vendre apartment Veysonnaz 1993; € 1 555 950
    Apartment sur Veysonnaz ; € 1 555 950  ; Vente Réf. EVR18_bis_1
    Apartment € 1 555 950  sur Veysonnaz (1993) - Réf. EVR18_bis_1
    Vente apartment € 1 555 950  Veysonnaz
    Achat apartment Veysonnaz Réf. EVR18_bis_1
    Apartment sur Veysonnaz ; € 1 555 950  ; A vendre Réf. EVR18_bis_1
    Apartment € 1 555 950  sur Veysonnaz (1993) - Réf. EVR18_bis_1
    Apartment
    Veysonnaz
    APPARTEMENT SKI-IN/SKI-OUT 1er ETAGE

    1'555'950 CHF
    • 5,5
    • 4

    • 4
    • 226 m2
    Learn more
    STAY CONNECTED
    EV Real Estate Services SARL
    Elsje Verfaillie
      • Chemin de Dzelon 19
        CH-1997 Haute-Nendaz
      • elsje@evres.ch
      • +41(0)79 194 83 92
      • +41(0)27 565 38 38
      • +41(0)79 194 83 92

    Stay connected
    Contact us

    COPYRIGHT © 2021 – EV REAL ESTATE SERVICES – ALL RIGHTS RESERVED

    34 avis
    Voir les avis Google de l’agence
    • FR
    • EN
    • DE
    • NL